用途:
广泛适应于污水和雨水泵站及污水处理厂,拦截捞取污水中粗大的漂浮物和悬浮物,对后序起保护作用和减轻负荷作用,适用于格栅井,水深不超过2m的场合。
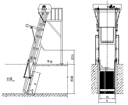
工作原理及构造:
主要由电动驱动装置、机架、回转链条、齿耙、栅条等部件组成。高链式格栅除污机装有单个齿耙在链条的驱动下作回转运动,即当链条由顶部的驱动装置带动做顺时针运转时,齿耙架受链条和导轨的约束作平面运动,在链条运行一周内完成齿耙闭合取渣,输渣、卸渣及换位的一整套循环动作,并通过顶部卸渣装置和除污耙的相对运动,将污物卸至输送机运走。工作时,污水从栅条的栅隙处流过,截流在栅条面上的垃圾在回转链带动的耙齿捞起后由下向上输送,耙斗到出料口时,由机架下方的橡胶清污板刮下。
特点:
1、结构简单,运行稳定可靠。
2、水下无任何传动部件,使用寿命长,维护检修方便。
3、过载保护,运行安全。
型号规格与主要技术参数表:
参数型号
Parameter type
|
格栅宽B1 (mm)
Grille width
|
井宽 B(mm)
Well width
|
工作水深 (mm)
Working water depth
|
栅条间隙 b(mm)
Grille clearance
|
行走速度 (m/min)
Walking speed
|
格栅倾角 α
Grid inclination angle
|
电机功率 (KW)
Motor Power
|
|
WGL800
|
800
|
830
|
700~2000
|
12~20
|
4.42
|
75º
|
0.75
|
|
WGL1000
|
1000
|
1030
|
700~2000
|
12~20
|
4.42
|
75º
|
0.75
|
|
WGL1200
|
1200
|
1230
|
700~2000
|
12~20
|
4.42
|
75º
|
0.75
|
|
WGL1350
|
1350
|
1380
|
700~2000
|
12~20
|
4.42
|
75º
|
1.1
|
|
WGL1500
|
1500
|
1530
|
700~2000
|
12~20
|
4.42
|
75º
|
1.1
|
|
WGL1650
|
1650
|
1680
|
700~2000
|
12~20
|
4.42
|
75º
|
1.1
|
|
WGL1800
|
1800
|
1830
|
700~2000
|
12~20
|
4.42
|
75º
|
1.5
|
|
WGL2000
|
2000
|
2030
|
700~2000
|
12~20
|
4.42
|
75º
|
1.5
|
型号表示方式:
|